Виды и образцы выписок из Реестра
Росреестр предлагает несколько разновидностей выписок из ЕГРН на квартиру, на дом и другую недвижимость.
| Вид | Какие сведения содержит | Кто может получить |
| Об основных характеристиках и зарегистрированных правах (простая) | Кадастровый номер и стоимость, границы относительно местности, технические данные (площадь, этаж, назначение), данные о правах и наложенных ограничениях (аресты, ипотека). | Любое заинтересованное лицо (например, покупатель) |
| О переходе прав на объект недвижимости (расширенная) | Вид объекта (дом, квартира, помещение и др.), кадастровый номер, адрес и сведения о переходе прав с основаниями | |
| О кадастровой стоимости | Вид объекта (дом, квартира, помещение и др.), кадастровый номер, адрес и кадастровая стоимость | |
| О правах отдельного лица на объекты недвижимости | Имя правообладателя, перечень принадлежащих ему объектов с адресами и кадастровыми номерами | Сам правообладатель или государственный орган по запросу (суд, пристав, налоговая) |
| О содержании правоустанавливающих документов | Содержание документа-основания, по которому состоялась регистрация перехода права |
Наиболее востребованными являются выписки из ЕГРН на квартиру и другие объекты об основных характеристиках и о переходе прав. Остальные запрашиваются только в редких случаях.
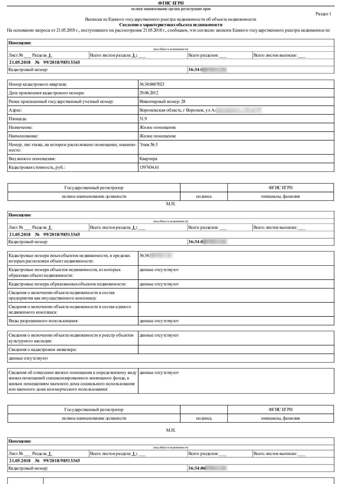
Образец простой выписки из ЕГРН об основных характеристиках:


Как выглядит расширенная выписка из ЕГРН на квартиру:


Как получить выписку из Единого государственного реестра недвижимости после вступления в силу новых правил по защите персональных данных собственников
Частые вопросы
Можно ли узнать, кто заказывал выписку из ЕГРН по вашей недвижимости
Как и вся информация из ЕГРН, список людей, кто спрашивал выписку по вашей недвижимости, общедоступна. Для этого нужно сделать запрос в любом МФЦ, на сайте Росреестра или «Госуслугах». Документ называется «Справка о лицах, интересовавшихся недвижимостью».
В ней написаны фамилии, имена и отчества людей, которые запрашивали информацию, а также номера и даты выдачи выписок. Вы можете выбрать период, за который, как вы предполагаете, кто-то получал данные о вашей недвижимости.
Справка платная — 290 рублей. Документ должны выдать в течение трех рабочих дней.
Можно ли заказать выписку из ЕГРН бесплатно?
Можно. Росреестр публично и безвозмездно предоставляет информацию только о кадастровой стоимости объектов недвижимости, дате ее последней переоценки и о видах обременений. Чтобы получить эту информацию, можно воспользоваться сервисом Росреестра «Справочная информация по объектам недвижимости в режиме online».
С 1 марта 2023 года на «Госуслугах» можно бесплатно получить экспресс-выписку. В ней нет графиков, чертежей и графиков, но есть другая информация. Ее принимают все государственные органы, а также ее достаточно для сделок купли-продажи.
Вся остальная информация заказывается только платно. Федеральный закон «О государственной регистрации недвижимости» дает перечень лиц и организаций, которые получают выписки бесплатно — это судьи, сотрудники МВД и СК, приставы, арбитражные управляющие, госкорпорации, аудиторы Счетной палаты и так далее. Причем получить данные бесплатно они могут только для рабочих целей.
Как долго готовят выписку из ЕГРН и сколько времени она действительна
Срок подготовки выписок из ЕГРН разный. МФЦ делает бумажный вариант документа до пяти рабочих дней, сам Росреестр — до трех дней, а онлайн-версии выписки на «Госуслугах» и на портале Росреестра готовы в течение нескольких минут (редкие исключения — задержка до 72 часов).
Федеральный закон «О государственной регистрации недвижимости» не регламентирует срок действия выписки из ЕГРН. Однако в муниципальных и государственных ведомствах, банках, нотариатах и судах неохотно принимают документ старше 30 дней. Объяснение простое: за календарный месяц может смениться не один собственник недвижимости, а в старой выписке этого указано уже не будет.
Как получить выписку ЕГРН с 1 марта с ФИО собственника?
Заказать выписку из ЕГРН с 1 марта с данными о владельце квартиры, дома или земельного участка можно. Правда, доступно это далеко не всем. Рассмотрим три варианта, как получить выписку ЕГРН с 1 марта старого образца.
Особые категории для получения выписки из ЕГРН с 1 марта
Закон определяет круг лиц, которым доступны ФИО собственника недвижимости в выписке после 1 марта. К нему относятся:
- иные собственники этой недвижимости;
- владельцы других объектов, например, участка, на котором построен объект, или смежного надела;
- родственники и не только (супруги, наследники по закону и завещанию);
- доверенные лица;
- официальные арендаторы и соарендаторы;
- люди, в пользу которых на недвижимости есть обременение или сервитут;
- залогодержатели, допустим, банк при ипотеке;
- определенные профессии: кадастровые инженеры, арбитражные управляющие, нотариусы;
- госструктуры: суды и служба судебных приставов, прокуратура, полиция и пр.
Важно! Покупатель может заказать выписку с 1 марта 2023 года у нотариуса, подтвердив намерение приобрести жилье. Без оснований нотариус и другие специалисты не предоставят третьему лицу выписку ЕГРН с ФИО собственника.
Разрешение собственника на получение выписки ЕГРН после 1 марта
Если желающий получить выписку с 1 марта не относится к одной из этих категорий или не имеет оснований для обращения к специалисту, можно поговорить с собственником. На сайте Росреестра теперь есть опция – открыть сведения из ЕГРН.
Сделать это можно в личном кабинете, авторизовавшись через аккаунт Госуслуг. Затем необходимо найти раздел «Мои объекты» и выбрать тот, на который потребуется выписка ЕГРН после 1 марта 2023 года. Появится справка об объекте недвижимости с кнопкой «Действия», где в меню нужно нажать «Иные услуги». Затем среди списка услуг надо выбрать «Внесение записи о возможности предоставления третьим лицам персональных данных».

Важно! Собственник может поставить «галочку» там, где сведения откроются только на конкретный объект, или сделать доступной информацию о всей недвижимости.
Если по какой-то причине у владельца имущества нет учетной записи на Госуслугах, он может прийти в отделение Росреестра лично или посетить ближайший МФЦ.
Какие данные можно узнать из выписок
Те, у кого есть доступ к полным выпискам, смогут узнать:
- ФИО владельцев;
- Историю перехода прав: все данные о смене владельцев начиная с 1998 года;
- Данные обо всех коммерческих и жилых объектах в собственности конкретного лица;
- Есть ли обременения: если квартира оформлена в качестве залога по ипотеке или на нее наложен арест;
- Правоустанавливающие документы: например, договор купли-продажи;
- Кадастровые характеристики: кадастровая цена, которая может отличаться от рыночной, но применяется при расчете льгот и налогов. Также сюда относится площадь, которая влияет и на стоимость жилья, и на налогооблагаемую базу.
Остальным доступны только последние два пункта.
Выписки из ЕГРН пригодятся, чтобы:
- Проверить квартиру, дом или участок перед покупкой: например, нет ли на них обременений в виде ипотеки и судебно-исполнительного производства или прописанных лиц, о которых продавец не упомянул;
- Выставить недвижимость на продажу: так вы убедите потенциальных покупателей, что с квартирой или домом все в порядке;
- Предоставить сведения о собственности банкам или госорганам;
- Узнать, не является ли дом объектом культурного наследия и не находится ли он в природоохранной зоне: иначе возможны ограничения на строительные и ремонтные работы;
- Оформить субсидию на покупку жилья для госслужащих или оплату ЖКХ — например, по инвалидности;
- Оформить налоговый вычет НДФЛ;
- Вступить в наследство.
4. Порядок получения выписки из ЕГРН:
Для получения требуемой выписки из ЕГРН Вам необходимо:
- подать запрос в Росреестр о предоставлении сведений из ЕГРН;
- внести плату за предоставление сведений из ЕГРН;
- получить подготовленную выписку из ЕГРН.
4.1. Как подать запрос в Росреестр о предоставлении сведений из ЕГРН?
Заказ выписки и Росреестра осуществляется путем подачи запроса одним из трех способом:
- лично в виде бумажного документа;
- в любом офисе МФЦ;
- через выездное обслуживание;
В случае подачи запроса о предоставлении сведений ограниченного доступа, либо подачи запроса от юридического лица сам запрос и прилагаемые к нему документы (если документы прикладываются к запросу, например, доверенность, свидетельство о рождении) должны быть подписаны усиленной квалифицированной электронной подписью (ЭП).
4.2. Как внести плату за предоставление сведений из ЕГРН?
За предоставление сведений из ЕГРН взимается плата. Размеры платы установлены приказом Минэкономразвития РФ от 10.05.2016 № 291.
Внести плату за предоставление сведений из ЕГРН необходимо только после подачи запроса и исключительно по .
Для оплаты достаточно совершить 2 простых шага:
- Шаг 1 — получить УИН.
Он содержится в платежном документе, который Вам выдадут по месту подачи запроса (в офисе МФЦ или в Кадастровой палате).
В случае подачи запроса в электронной форме через сайт Росреестра УИН (код платежа) к Вам поступит в уведомлении на указанный Вами в запросе адрес электронной почты.
В случае направления запроса по почте УИН к Вам также поступит в уведомлении на указанный Вами в запросе адрес электронной почты либо коротким текстовым сообщением на указанный в запросе номер мобильного телефона.
В платежном документе (чек-ордере, квитанции, платежном поручении и т.д.), который сформируется после внесения Вами платы обязательно должен быть указан УИН. При оплате не по УИНу государственная услуга по предоставлению сведений из ЕГРН не будет оказана, т.к. поданный запрос будет считаться неполученным и не будет рассматриваться.
- Шаг 2 — оплатить любым удобным для Вас способом:
- в отделениях банка;
- онлайн платежом через интернет или мобильное приложение;
- через банкоматы и терминалы.
Плата должна быть произведена не позднее 7 календарных дней со дня получения платежного документа, в котором указан УИН. Если плата будет произведена на 8 календарный день или позже, то запрос будет считаться неполученным и не будет рассматриваться.
4.3. Как получить подготовленную выписку из ЕГРН?
Получить готовую выписку можно одним из 3-х способов:
Отсчёт срока оказания государственной услуги по предоставлению сведений из ЕГРН начинается со следующего дня после получения Росреестром информации о поступлении платежа.
Выписку Вы сможете получить тем способом, который указали в запросе
Обратите внимание, что при личной подаче заявления Вам доступны все формы получения выписки (в виде бумажного документа в МФЦ или по почте; в электронном виде). При подаче запроса посредством почтового отправления получить выписку можно либо по почте, либо в электронном виде
Если запрос подавался в электронном виде, выписку Вы может получить на указанный Вами в запросе адрес электронной почты в виде ссылки на электронный документ либо в виде бумажного документа, заверенного подписями и печатями, почтовым отправлением.
Вам также может быть интересно:
Срок действия
Официально период, сколько действительна выписка из ЕГРН, не установлен. На самой выписке вы не найдете упоминаний о сроке действия, как часто бывает с другими документами. Поэтому сроки в каждом случае определяются индивидуально в соответствии с целями, для которых выписка используется.
Например, для купли-продажи и проверки жилья на юридическую чистоту выписка из ЕГРН на квартиру действительна в течение одного месяца. За месяц могут произойти значительные изменения во всех основных параметрах – технических, кадастровых, правовых. Поэтому и заказывать информацию нужно перед продажей свежую.
Чем полезны выписки из ЕГРН с 1 марта 2023 года без ФИО собственника?
Как уже отметили эксперты, выписка после 1 марта остается одним из главных документов. За исключением имени владельца квартиры там есть и другие важные сведения:
- количество собственников и их доли, которые будут видны, даже если нет ФИО;
- общие данные об объекте недвижимости (адрес, кадастровые номер и стоимость, площадь, чертеж с расположением комнат), по которым, например, можно сверить его площадь или уточнить незаконные перепланировки;
- обременения и ограничения, из-за которых Росреестр не примет документы;
- идентификационный номер договора и дата, когда собственник купил жилье, помогут проверить документ-основание;
- наличие или отсутствие отметки о запрете регистрации без участия собственника подтвердит полномочия доверенного лица;
- пустой пункт «Правопритязания и сведения о наличии поступивших, но не рассмотренных заявлений» докажет, что в Росреестре нет других бумаг на регистрацию права.
- не нужно заполнять большую анкету – требуется только номер телефона и электронный адрес;
- заказ сразу берут в работу, выписка из ЕГРН приходит на почту в течение нескольких часов.
Как получить выписку
Получить выписку из ЕГРН можно несколькими разными способами в зависимости от желания заявителя:
- онлайн с помощью сервиса Росреестра или Госуслуг;
- лично в МФЦ.
Заказать онлайн
Через интернет получить выписку из ЕГРН проще всего через портал Росреестра:
Для этого:
- На сайте ведомства перейти к Форме запроса сведений из ЕГРН.
-
Справа в списке выбрать нужный вид информации, заполнить сведения об объекте и способ предоставления – электронный или бумажный. По юридической силе они равнозначны, но электронный высылается быстрее на онлайн-почту.
- Затем заполняем сведения о заявителе.
Сверяем данные и отправляем запрос.
Сведения о статусе запроса система выдаст на следующем шаге. Если запрашивали простую или расширенную информацию, здесь также будет информация об оплате пошлины.
Когда заявление обработают, на электронную почту придет соответствующее письмо с инструкциями по получению.
- Вход или регистрация на портале.
- Заполнение онлайн-формы заявления.
- Оплата госпошлины.
- Получение документа выбранным при подаче заявления способом.
Лично в ведомстве
Альтернативный вариант – получить сведения через МФЦ. Росреестр с недавних пор не принимает заявления на выдачу, поэтому лучше сразу подойти на прием к специалисту офиса «Мои документы». Записаться можно в любой, независимо от места нахождения недвижимости.
Для подачи заявления понадобятся документы:
- паспорт заявителя – подлинник (копию делать не нужно);
- адрес или кадастровый номер объекта недвижимости (можно взять с собой свидетельство о праве собственности);
- документ об оплате госпошлины (квитанция).
На приеме специалист заполнит заявление, выдаст расписку и сообщит, когда можно будет получить готовые бумажные сведения с синей печатью.
Сроки и стоимость
Срок изготовления составляет максимум 5 рабочих дней, из которых 2 дня отводятся на передачу заявления из МФЦ в Росреестр и обратно, а 3 – на формирование самой выписки. Если документ запрашивается в онлайн-форме, то он будет готов уже через 3 рабочих дня.
Госпошлина на простой и расширенный варианты зависит от формы и заявителя:
- граждане за бумажную форму заплатят 400 рублей, за электронную -250;
- для фирм бумажный вариант – 1100 рублей, электронный – 700 рублей.
Сведения о кадастровой стоимости предоставляются бесплатно.
Как и где заказать отчет из ЕГРН
Отчет из ЕГРН о переходе права собственности на объект недвижимого имущества не содержит тайных сведений и поэтому может быть выдана любому лицу по запросу. Получить ее может даже гражданин иностранного государства. Запросить можно данные о любом объекте недвижимости на территории нашей страны. За возможность получить отчет из егрн о переходе прав на объект недвижимости, необходимо оплатить государственную пошлину. После факта оплаты отчет готовится в течение 3-х дней. В электронном виде отчет доходит до получателя быстрее, чем в бумажном. Кроме того, электронный вариант дешевле, чем бумажный.
Бумажную отчет из ЕГРН можно получить, обратившись в территориальное отделение Росреестра или в МФЦ «Мои документы». Заявитель должен подойти лично и предоставить паспорт.
Электронный отчет можно получить, отправив запрос у нас на сайте через специальную онлайн-форму. Вместе с отчетом вы бесплатно получите отчет ЕГРН для подтверждения легитимности информации, отображаемой в отчете.
Чтобы получить сведения о недвижимости, необходимо знать ее адрес и кадастровый номер. На сайте Росреестра есть специальный сервис, где кадастровый номер выясняется при наличии сведений о точном адресе. Так же в заявлении указываются сведения о том лице, которое подает запрос.
Срок действия выписки
Сведения, содержащиеся в отчете росреестра о переходе прав, считаются актуальными на дату получения. Хотя в законе не оговорен точный срок действия выписки. Поэтому ориентироваться необходимо на ту организацию, в которую отправляется документ. Банки, суды и нотариусы считают отчет действительной в течение месяца. При покупке недвижимости стоит заказывать документ непосредственно перед совершением сделки купли-продажи
Важно помнить, что отчет отражает сведения на момент ее создания, через некоторое время право собственности может перейти к иному лицу и информация окажется неактуальной. Соответственно отчет должна измениться
Стоимость выписки
Стоимость отчета на основании выписки о переходе прав на объект недвижимости составляет 200 рублей при заказе на нашем сайте или в приложении. Вместе с ответом вы бесплатно получите официальную отчет из Егрн для подтверждения легитимности отчёта.
Свидетельство о праве собственности или выписка: что важнее?
Выписка из ЕГРН — более универсальный документ, который полностью заменяет свидетельство. Она необходима при проведении сделки купли-продажи, регистрации договора найма или совершении иных регистрационных действий с недвижимостью.
Этот документ можно предоставить в государственные органы, например, при оформлении субсидий, в ГУВМ МВД РФ для постоянной или временной регистрации проживающих в квартире лиц, иные государственные органы.
Такая ситуация не значит, что свидетельство о праве собственности на квартиру стало полностью бесполезным и от него можно избавиться. Это по-прежнему документ, подтверждающий право собственности владельца недвижимости. Однако круг учреждений, которые принимают свидетельство, значительно сузился.
Документ не подойдет для сделок, так как в нем не отражена информация о наличии или отсутствии обременения на квартиру. Многие организации теперь также в обязательном порядке требуют выписку, однако другие обходятся и свидетельством. Например, свидетельство подтвердит права собственника при обращении в суд, в ТСЖ, при проведении голосования владельцев жилых помещений в многоквартирных домах.
Могут ли банки получить информацию?
Да, кредитные организации могут получить персональные данные. Для этого они могут использовать доступ в личный кабинет «Госуслуг». Причем сам собственник может и не узнать об этом. Сделано это для повышения безопасности работы с кредитными организациями.
Заверение документов
Выписки можно и нужно заверять. Для этого можно использовать подпись электронного типа – УКЭП. В будущем планируется сформировать систему заверения с помощью наложения QR-кодов. В этом случае процесс будет значительно упрощен, а сам пользователь будет получать только результат проверки. Каких-либо подробных деталей информация содержать не будет.
2. Выписки из ЕГРН ограниченного доступа
Сведения из ЕГРН, имеющие согласно федеральному законодательству режим ограниченного доступа, могут быть предоставлены только кругу лиц, имеющих на это законное право:
- правообладатели и их законные представители (родители, опекуны);
- лица, действующие по доверенности от правообладателя (доверенные лица);
- лица, имеющие право на наследование недвижимого имущества правообладателя по завещанию или по закону;
К выпискам ограниченного доступа относятся:
- выписка о правах отдельного лица на имевшиеся (имеющиеся) у него объекты недвижимости;
- выписка из ЕГРН о признании правообладателя недееспособным или ограниченно дееспособным;
- выписка о содержании правоустанавливающих документов;
- выписка о дате получения органом регистрации прав заявления о государственном кадастровом учете и (или) государственной регистрации прав и прилагаемых к нему документов;
- справка о лицах, получивших сведения об объекте недвижимости.
Для чего требуется выписка
Выписка из ЕГРН на объект недвижимости необходима во всех случаях, когда требуется произвести с ним юридически значимые действия или прояснить какой-то вопрос. Чаще всего она требуется:
- в сделке купли-продажи, при оформлении дарственной, ренты, аренды;
- для получения ипотечного кредита и оформления залога банка;
- при оформлении приватизации или наследования;
- при получении любых жилищных субсидий от государства;
- в спорах и судебных разбирательствах, исполнительных производствах;
- при перепланировке, переносе границ и других вопросах изменения характеристик объекта недвижимости.
В любых сделках объект недвижимости проверяется на юридическую чистоту в первую очередь по выписке. О том, как правильно провести проверку, читайте по этой ссылке.
Какие бывают выписки из ЕГРН
Выписки можно разделить на две основные группы:
- информация о недвижимости;
- данные о субъектах, то есть владельцах;
Выписка об основных характеристиках и зарегистрированных правах
В этом документе указываются комплексные данные об объектах недвижимости:
- характеристика объекта — адрес, площадь, этажность, дата регистрации, кадастровый номер и стоимость, назначение;
- ФИО собственников или название юрлица, если выписку заказывает правообладатель;
- действующие обременения — от самого факта до информации, в пользу кого наложены ограничения;
- план, чертеж или схема.

Выписка стоит 290 рублей в электронном виде и 350 рублей бумажный вариант, а оформление через МФЦ дороже на 70 рублей — 460 рублей.
Выписка об объекте недвижимости
Эта выписка из ЕГРН содержит всю публичную информацию об объектах недвижимости. Помимо основных характеристик и зарегистрированных правах здесь можно уточнить:
- координаты объекта, информацию о частях объекта и материале наружных стен;
- наличие зарегистрированных договоров участия в долевом строительстве;
- основания возникновения права собственности — например, даты договоров дарения или купли-продажи;
- данные кадастровых инженеров, выполнявших кадастровые работы;
- сведения о включении объекта в реестр объектов культурного наследия и расположении объекта на территории особых зон;
- сведения о наличии земельного спора о местоположении границ земельных участков.

Электронная выписка стоит 350 рублей, бумажная — 740 рублей, а оформление через МФЦ обойдется в 870 рублей.
Выписка о переходе прав на объект
Эта выписка поможет подтвердить право на недвижимость, а также узнать историю владения объектом. Также в ней указаны судебные споры. В документе не будет информации о кадастровой стоимости и действующих обременениях. Получить персональные данные по ней может только правообладатель и ограниченный круг лиц.

В электронном виде выписка стоит 290 рублей, бумажный вариант — 390 рублей, через МФЦ — 460 рублей.
Выписка о кадастровой стоимости
Единственная бесплатная выписка — в ней указана базовая информация об объекте недвижимости и кадастровая стоимость.

Выписки в отношении субъектов недвижимости
Выписку о владельце недвижимости можно получить только про себя. Исключение: если от вашего имени документ запрашивает представитель по нотариальной доверенности. Они бывают нескольких видов:
- о правах лица на его объекты недвижимости. В выписке будут указаны сведения обо всей недвижимости, которой человек владеет или владел. Стоимость зависит от количества субъектов РФ, по которым нужно провести поиск — от 470 до 870 рублей за электронный вариант, от 640 до 1 770 рублей за бумажный вариант;
- о договорах участия в долевом строительстве. В этой выписке указана информация о земельном участке и застройщике, а также номера договоров всех участников долевого строительства и их ФИО. Стоимость — 870 рублей за электронный вариант, 1 770 — за бумажный;
- о недееспособности правообладателя. Стоимость — 470 рублей за электронную, 620 рублей за бумажную;
- заявления об учете или регистрации прав. Стоимость — 290 рублей за электронную выписку, 390 рублей за бумажную.
Экспресс-выписка
С 1 марта на «Госуслугах» можно получить бесплатную выписку за 1 минуту. В ней нет планов, схем и графиков, но содержатся сведения об объекте недвижимости, всех его владельцах — как бывших, так и нынешних, ограничениях прав, кадастровой стоимости, а также наименования и реквизиты документов-оснований государственной регистрации прав.
Заказать ее может только собственник с подтвержденной учетной записью, а в его сведениях уже должна быть информация об объектах недвижимости.
Что такое выписка из ЕГРН

ЕГРН – единый государственный реестр недвижимости содержит всю имеющуюся информацию о находящихся в России объектах, в том числе квартирах, земельных участках, комнатах, домах. С 2017 года именно ЕГРН является ведущим Реестром, в который постепенно передается информация из других разобщенных источников.
ЕГРН объединил в себе два основных списка:
- государственный кадастр (ГКН) из которого ранее выдавались кадастровые паспорта и выписки;
- реестр прав (ЕГРП), на основании записей в котором формировались свидетельства.
Это значит, что во всех списках необходимых документов для различных целей вместо «кадастровый паспорт» или «свидетельство о праве» нужно читать «выписка из ЕГРН». Но если на руках остались старые документы, их не нужно выкидывать – сохраните в личном архиве вместе с выпиской.
Выписки с закрытой информацией
Помимо общедоступной (открытой) информации в ЕГРН хранится информация, получить которую могут только собственники или их законные представители, а также правоохранительные органы, суды, приставы, нотариусы, органы власти. К закрытой информации относятся следующие категории выписок.
- Выписка из ЕГРН о признании правообладателя недееспособным или ограниченно дееспособным.
- Выписка из ЕГРН о правах отдельного лица на имевшиеся (имеющиеся) у него объекты недвижимости.
- Выписка о лицах, получивших сведения об объекте недвижимого имущества.
- Выписка о содержании правоустанавливающих документов.
В чём разница
Выписка из ЕГРН о признании правообладателя недееспособным или ограниченно дееспособным.
Очень часто справка с таким содержанием требуется судам и нотариусам для совершения нотариальных действий, чтобы удостовериться в дееспособности человека, ведь сделка, совершенная с недееспособным правообладателем будет считаться недействительной.
Цена
Стоимость такой выписки в бумажном виде 950 рублей, в электронном — 400 рублей.
Выписка из ЕГРН о правах отдельного лица на имевшиеся (имеющиеся) у него объекты недвижимости.
Достаточно популярный вид выписки. В данной форме можно получить сведения о наличии прав на недвижимость по состоянию на определенную дату, если вы ее укажете. Документ позволяет подтвердить, какая недвижимость была зарегистрирована на вас в интересуемый период, в том числе за прошедшее время. Такая выписка очень выручает в ситуации, когда, к примеру, вы продали квартиру, а налоговики продолжают высылать вам уведомление об уплате налога. Цена данной выписки будет зависеть от того, какие сведения вы хотите получить.
Цена
Если необходима информация о том, какой недвижимостью вы владеете в одном регионе, то это обойдется в 650 рублей на бумаге, электронном виде – 400 рублей. Если же нужны сведения по всей России, то придется раскошелиться и заплатить 1800 рублей за выписку на бумажном носителе, 750 рублей – в электронном виде.
Выписка о лицах, получивших сведения об объекте недвижимого имущества.
Такая выписка может понадобиться, если вам необходима информация о том, кто интересовался недвижимостью, которая находится у вас в собственности то.
Цена
Оплатив 400 рублей, получите в бумажном виде такую справку. В электронном виде документ обойдется дешевле – 250 рублей.
Выписка о содержании правоустанавливающих документов.
Пригодится, если оригиналы бумаг на жилье утрачены. Именно эта выписка сможет доказать наличие вашего права собственности и дать информацию, о том, откуда право появилось и на каком основании сохраняется. К сожалению, заказать выписку вправе только собственник объекта. Степень заинтересованности покупателя значения не имеет.
Цена
Стоимость для граждан в бумажном виде — 600 рублей, в электронном — 400.
Изменения в выписках ЕГРН с 1 марта 2023 года
Где заказать, стоимость и срок
Выписку может заказать любой человек на любую недвижимость в РФ, как на свою, так и на чужую. Напоминаю, что выдается она в бумажном и в электронном виде.
Электронная выписка стоит 290 руб — Приказ Росреестра от 13.05.2020 N П/0145. Ее выдают такие официальные сервисы, как:
- Госуслуги — инструкция заказа. При заказе обязательно указать кадастровый номер недвижимости. Есть комиссия в 1%. Средний срок выдачи выписки — 24 часа;
- Кадастр.ру — инструкция заказа. Это сайт Федеральной кадастровой палаты. При заказе необязательно указывать кадастровый номер недвижимости, хватит адреса. Есть комиссия в 6% при оплате по банковской карте и Google Pay, комиссии нет только при оплате Yandex Pay. Средний срок выдачи выписки — 24 часа;
- Сайт Росреестра — инструкция заказа. Есть комиссия в 1%. Средний срок выдачи выписки — 3 дня.
Бумажную выписку можно получить в МФЦ «Мои Документы» за 460 руб. (390 руб. за запрос в ЕГРН + 70 руб. за услуги МФЦ), срок выдачи — до 4 рабочих дней. Если в населенном пункте нет МФЦ, обращаемся в отделение Росреестра (в простонародье Регистрационная Палата). Выписка там стоит 390 руб., срок выдачи — до 3 рабочих дней. В обоих организациях выписка выдается одинаково — инструкция.






























